
16m2 Flexible Mobile Home Office Luna Model

Today we will introduce you to ’16m2 Flexible Mobile Home Office Luna Model’ suitable for the minimalist flexible working life of your dreams.
In recent years, the business world is changing rapidly and flexibility is becoming increasingly important. Therefore, mobile offices are becoming a new way to keep up with this change by offering employees the opportunity to work from anywhere. Most importantly, these small mobile offices offer businesses the potential to increase employee productivity and improve work life balance, in addition to providing cost savings.
New Generation Mobile Home Office Luna
The Poland-based design company creates designs that make working life easier and more fun. For example, are you one of those who dream of getting away from home and workplace and dreaming of a working environment intertwined with nature? Small home office Luna offers a practical and stylish solution for those looking for a nature escape without interrupting their work.
If you want to design the tiny house of your dreams, take a look at the magnificent designs on our website.

EXTERIOR DESIGN
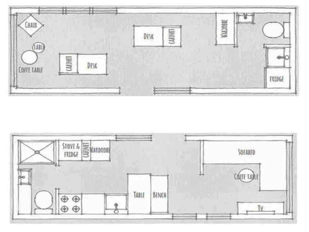
- Dimensions: 7.3 m; width: 2.55 m; height: 3.5m
- Trailer: Light axle trailer
- Weight: 3.5 tons
- Wooden Frame: Spruce, Thermo Wood or Shou sugi ban
- Insulation: Double-glazed windows and double-glazed exterior doors made of tempered glass
- Roof System: Light and durable aluminum roof


INTERIOR DESIGN
- 16 m2 living area
- Room height 2.76 m
- Outer covering made of spruce panel
- Floor laminate
- Electrical, plumbing and ventilation installations were made


Home Office Flexible Working Methods Life: Redefine Your Working Style
Mobile offices are becoming increasingly important today with new generation working opportunities. Additionally, these tiny houses offer great advantages to businesses and employees.
Remote Flexible Working: Mobile home offices offer employees the opportunity to work from anywhere outside the office. Thus, it provides flexibility to business owners and employees.
Cost Savings: Mobile offices allow businesses to save on rent and operating expenses instead of renting a fixed office.

Productivity: Thanks to mobile offices, employees can work more efficiently without traffic stress. Additionally, businesses can increase productivity by making it easier for employees to access work.
Work-Life Balance: Home office working methods can help employees achieve a better balance between their work and personal lives. For example, flexible working hours and remote working options can make employees happier and more motivated.

16m2 Flexible Mobile Home Office Luna Model
As a result, the importance of mobile home office flexible workingmethods is increasing in today’s business world. These great offices offer flexible remote working opportunities, saving businesses money and time. Additionally, these small living spaces increase socialization and ensure work-life balance.

For detailed information about Mobile Office Luna, visit the Aurora Company website.
Source: Aurora Company
Click here for more information about tiny houses.
Don’t forget to check out other great ideas about Tiny House Universe and share them with your friends. Thanks!
»» Follow Tiny House Universe on social media to stay up to date with the latest posts ««
↓↓ Check Out Other Fascinating Tiny Stories ↓↓
- Stylish 6×6 Detached Small House Model: How is this luxury possible in just 30 square meters?
- 15m2 Authentic Sweet Tiny House Life: This Tiny House Interior Design is Shocking!
- Cozy 5 x 9 Single-Story Small Home Model: Experience Maximum Performance in a Minimalist Home
- Romantic 40m2 Hickory Holiday Home in Barneveld: Discover the Magical World of Minimalist Living
- Comfortable 6m x 6m Country House Model: Maximum Performance in Minimalist Homes
↓↓↓ For More ↓↓↓
Table of Contents
Keywords: house designs, container house, cozy homes, minimalist living, small cabins, tiny house, 10 square meter tiny house, tiny house projects, portable tiny house, affordable small homes, living in nature, off-grid tiny house, 20 m² tiny house plans, minimalist living space, compact home design, DIY home building ideas, tiny house, stone cabin design.











